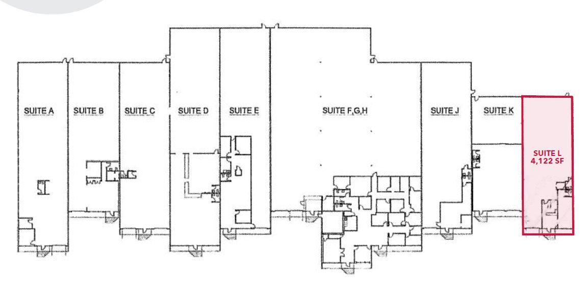
4275 Arco Lane - Suite L, North Charleston, SC 29418

Price
$15.00/SF (NNN)
Zoning
City of North Charleston - M-1 Light Industrial District
SF
4,122 SF
Acreage
3.66 AC
Drive Ins
1 Drive In
Dock Doors
0 Dock Doors
Click Below To See Property Flyer
View Property FlyerContact an Agent

Jon-Michael Brock
Principal - Founder

Alex Whittemore
Vice President




